Добро пожаловать на http://vipplan.ru

Випплан Петровск - это тысячи проектов домов в нашем каталоге!

Вы всегда сможете найти для себя проект дома вашей мечты! Даже если этого не случилось, мы готовы в любую минуту предложить проект индивидуального дома.

Забыли пароль?
Вы еще не регистрировались?

Перейдите по ссылке ниже на страницу регистрации.

Регистрация...

Внимание!!!

В проектную документацию могут быть внесены изменения любой сложности, в соответствии в Вашими пожеланиями!

Полезные статьи

Где копать колодец?

Водоснабжение за городом - Петровск всегда было проблематичным. При отсутствии центрального водоснабжения остается только один выход – выкопать колодец. Водоносный пласт есть не везде. Как же определить, где копать колодец?...

Свайно-ростверковый, буронабивной фундамент

Для объединения свай в общий фундамент устанавливают бетонные ростверки (железобетонные плиты). Устройство ростверка зависит от расположения, вида свай и конструкции здания. Ростверки могут быть монолитными, сборными или сборно-монолитными, также возможны безростверковые решения. ...

Проекты домов и коттеджей > Каталог проектов домов > Дом с мансардой, гаражом Vg2371

Дом с мансардой, гаражом Vg2371

Дом с мансардой, гаражом
Зарегистрируйтесь

Проект № Vg2371


Техническое описание
Общая площадь: 160.4 м2
Жилая площадь: 96.71 м2
Высота здания: 9.29 м
Размеры дома: 12.2м×11м
Кол-во комнат: 5
Цокольный этаж: нет
Гараж: нет
Мансарда: есть

Kонструкция
Фундамент: свайно-ростверковый (буронабивной)
Перекрытия: деревянные балки
Материал стен: Газобетон

Архитектурный раздел
Конструктивный раздел
АР+КР - 56 000 (Со скидкой 20%)
Модель проекта индивидуального одноэтажного жилого дома с мансардой с размерами здания 12,20х11,00 м. Наружная отделка здания – сайдинг. Фундамент – свайно-ростверковый (буронабивной). Наружные стены – газобетонные блоки, минеральная вата, сайдинг. Внутренние стены и перегородки - газобетонные блоки. Пол 1 этажа - пол по деревянным балкам и по грунту. Перекрытие мансарды - деревянные балки. Крыша многоскатная. Кровля – металлочерепица. Окна — металлопластиковые.
Генплан застройки участка / Паспорт проекта 7000 руб / 10000 руб
Инженерный раздел (полный) 80000 руб
Смета на строительство 40000 руб
Теплотехнический расчет материалов стен Бесплатно
Стоимость проекта со незначительнми изменениями 66000 руб
Стоимость проекта со средними изменениями* 78000 руб
Стоимость проекта со значительными изменениями** 81200 руб

План первого этажа


Тамбур — 1,67 кв м
Холл — 8,34 кв м
Кухня — 6,96 кв м
С/у — 4,00 кв м
Столовая — 5,29 кв м
Гостиная — 30,16 кв м
Бойлерная — 6,82 кв м
Гараж — 17,76 кв м

Дом с мансардой, гаражом

Дом с мансардой, гаражом

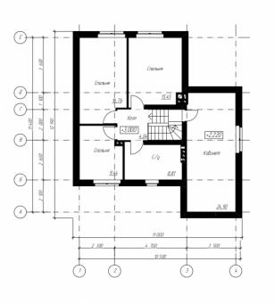
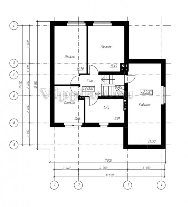
План второго этажа


Холл — 4,04 кв м
Спальня — 9,44 кв м
С/у — 8,81 кв м
Спальня — 16,76 кв м
Спальня — 15,45 кв м
Кабинет — 24,90 кв м
Дом с мансардой, гаражом Дом с мансардой, гаражом Дом с мансардой, гаражом Дом с мансардой, гаражом

Модификации проектов

Внесение изменений и привязка к участку строительства

В любой из проектов от компании VIPplan - Петровск по вашему желанию могут быть внесены изменения в материалы стен, материалы наружной отделки дома, а также будет произведена адаптация проекта под конкретный регион строительства (с учетом грунтов региона, геологических особенностей вашего участка и местных климатических условий) - БЕСПЛАТНО !!! (кроме проектов со скидкой и проектов наших партнеров).

Любой из проектов, размещенных на сайте petrovsk.vipplan.ru мы можем выполнить из требуемых вам строительных материалов: ячеистый бетон (газобетон, пеноблок), керамоблок, кирпич, шлакоблок, бетонный блок, дерево (брус, клееный брус), каркасная технология (деревянный каркас, металлокаркас (ЛСТК)).

Фасад дома и его наружную отделку так же возможно выполнить с применением различных облицовочных материалов: структурной штукатурки, (с утеплителем и без), сайдингом (пластиковый или металлосайдинг), фиброплитами, кирпича.

 
6 Избранные
проекты

Доставка проектов по России: Москва (Московская область), Санкт-Петербург (Ленинградская область), Краснодар, Ростов-на-Дону, Ставрополь, Сочи, Волгоград, Новосибирск, Белгород, Брянск, Воронеж, Саратов, Хабаровск, Астрахань, Нальчик, Владикавказ, Екатеринбург, Тюмень, Самара, Нижний Новгород, Казань, Пермь, Уфа, Челябинск, Красноярск, Ханты-Мансийск, Иркутск, Курган, Оренбург, Омск, Томск, Барнаул, Новокузнецк, Кемерово, Абакан, Чита, Якутск, Южно-Сахалинск, Петропавловск-Камчатский и страны ближнего зарубежья: Белоруссия, Украина, Казахстан